
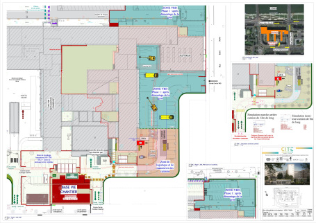
Cliquez sur le plan ci-dessous pour l'agrandir et visualiser l'accès au chantier et les zones de déchargement.


Informations pratiques
Adresse de livraison : 38 cours Clémenceau 76100 Rouen
Coordonnées GPS : Latitude 49°26'N Longitude 1°5'E
Horaires de livraison : 7h30-12h00 / 13h00-16h30 du lundi au jeudi et 7h30 à 12h30 le vendredi
Téléphone de Sica sur le chantier : +33 7 49 41 29 90
Email de Sica sur le chantier : logistique.casaintsever@gmail.com
Consignes
Seules les livraisons annoncées sur cette plateforme de réservation seront autorisées à pénétrer sur le chantier.
Les livraisons doivent êtres annoncées 48 heures à l’avance.
Dimension utile du lift : L 4500 mm x l 1500 mm x H 2000 mm.
Dimension maximum des palettes : L 3300 mm x l 1200 mm x H 2000 mm et poids 1500 kg.
Les palettes doivent être prenables dans les deux sens avec un passage supérieur ou égal à 10 cm entre le sol et la palette pour passer le transpalette.
Toute palette manutentionnée par Sica d'une valeur supérieure à 5 000 euros doit être déclarée lors de la réservation.
Pour consulter le protocole logistique, écrire à logistique.casaintsever@gmail.com